Alle priser er ekskl. moms.

Ring til os

6017 9416 / 2191 0272

Puslebord væghængt m. vask

19.995,00 kr.

Pris ekskl. moms: 19.995,00 kr.
Pris inkl. moms: 24.993,75 kr.

Varenummer: 6510V

Vægt: 80 kg

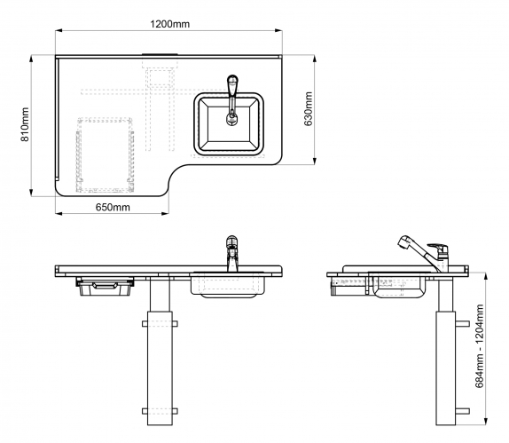
Mål: Højde:664-1204mm Bredde:1200mm Dybde:810mm

leveringstid

-
+

Elektrisk puslebord hæv/sænk, blandingsbatteri og håndvask

Kraftig 25mm bordplade med Linoleum og 2mm ABS kant.

Gratnells plast kasse under bordpladen til venstre for vask

Relaterede produkter

FRIGG stabelbar taburet

leveringstid

898,00 kr.

“Hæng ud”

leveringstid

Mobilt Sofabord

leveringstid

3.595,00 kr.

Garderobe Lux m. bænk 3rum

leveringstid

3.294,00 kr.

Ring til os

+45 6017 9416